Bezirk Reutte

Vorderhornbach baut Campingplatz

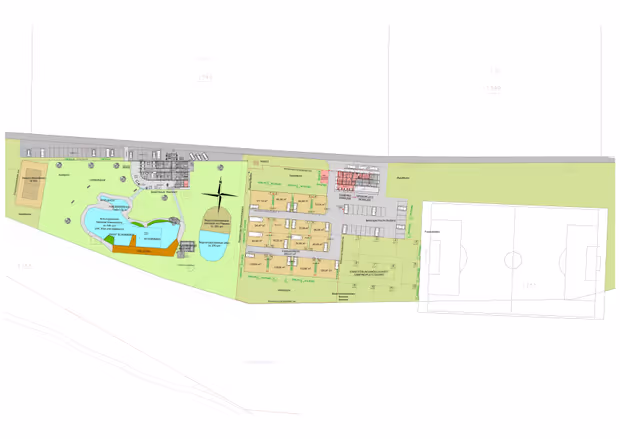
In direkter Nachbarschaft zum Naturschwimmbad Badino wird heuer im Frühling ein Campingplatz entstehen. Die vorerst 16 geplanten Stellplätze könnten bei Bedarf auf 28 bis 30 erweitert werden.

Von Simone Tschol

Vorderhornbach –Vor Jahrzehnten wurde noch gegrübelt, wie das Lechtal wirtschaftlich aufholen und touristisch positioniert werden könnte. Inzwischen lautet die Prämisse: sanfter Tourismus. Im Winter tendiert das obere Lechtal stark in Richtung Arlberg, von Elbigenalp abwärts konzentriert man sich auf Langlauf und das Winterwandern. Im Sommer konnten durch die Weitwanderstrecke „Lechweg“ und den Lech-Radweg kräftige Impulse gesetzt werden. Dies möchte sich die rund 250 Einwohner zählende Gemeinde Vorderhornbach jetzt zunutze machen. Sobald der Winter vorüber ist, wird direkt neben dem Naturschwimmbad Badino ein Campingplatz entstehen. „Es hat bereits vor Jahren eine Analyse gegeben, wonach das Lechtal neben dem bereits bestehenden Campingplatz in Häselgehr noch zwei zusätzliche vertragen würde. Eigentlich hatten wir die Idee dazu schon beim Bau des Badino. Damals waren aber auch Stockach und Stanzach im Gespräch. Also haben wir die Finger davon gelassen“, erklärt Bürgermeister Gottfried Ginther und fügt hinzu: „Da aber keines der beiden Vorhaben umgesetzt wurde, haben wir uns jetzt entschieden, einen Campingplatz zu machen.“ Geplant seien vorerst 16 Stellplätze. Ginther: „Wir schauen jetzt einmal, wie es funktioniert. Falls Bedarf da wäre, könnte die Anlage auch auf 28 bis 30 Plätze erweitert werden.“

Einer der größten Pluspunkte der neuen Anlage könnte ihre Lage sein – direkt am Lechtal-Radweg und an der Einmündung des Hornbachs in den Lech. „Die Lage ist optimal. Mit dem Campingplatz können wir einerseits das touristische Angebot im unteren Lechtal um eine Facette erweitern, andererseits die vielen Schwarzcamper in die Schranken weisen“, meint der Gemeindechef.

Gebaut und finanziert wird das rund 300.000 Euro teure Projekt von der Gemeinde. Unterstützung gibt’s durch Förderungen aus dem Regionalwirtschaftlichen Programm Lechtal und das Land Tirol. Strom und Wasserleitungen müssen verlegt werden, das bestehende Sportvereinsgebäude wird um ein barrierefreies Sanitärgebäude für die Camper erweitert.

Betreut werden soll die Anlage vom Badino aus. Pächter Mark Hornkamp, der das Schwimmbad samt Gastronomiebetrieb im letzten Jahr übernommen hat, ist guter Dinge. Er glaubt an eine Campingplatzeröffnung im Mai oder spätestens Juni.

Für BM Ginther, der durch die Synergien mit dem Badino zahlreiche Vorteile sieht, steht fest: „Mit 16 Stellplätzen wird man natürlich nicht reich. Aber es ist eine zusätzliche Einnahmequelle. Und auch wenn die Anlage klein ist, so wollen wir doch hohe Qualität bieten. Nur so kommen wir in die Campingführer und können unsere Bekanntheit steigern“, weiß Ginther.

Badino, Campingplatz und der angrenzende Fußballplatz sollen eine große Einheit für den Freizeitbereich bilden. Auch Planungs- und Tourismusverband sehen die Entwicklung positiv.

Direkt angrenzend ans Badino werden im Frühjahr 16 Camping-Stellplätze entstehen.
© LUNI-Baumanagement

Für Sie im Bezirk Reutte unterwegs:

Helmut Mittermayr

Helmut Mittermayr

+4350403 3043

Simone Tschol

Simone Tschol

+4350403 3042